
Floorplans & Campus Map
Welcome to the Miami Beach Convention Center's Floorplan and Campus Map information page. Here, you'll discover an interactive journey through our premier event spaces and vibrant campus. Explore detailed floorplans of our iconic Grand Ballroom, versatile exhibition halls, and meeting rooms. Navigate our campus map to uncover nearby amenities and scenic spots like Collins Canal Park. Use these tools to better organize your conference, trade show, or special event, let our resources guide you in creating unforgettable experiences at MBCC.
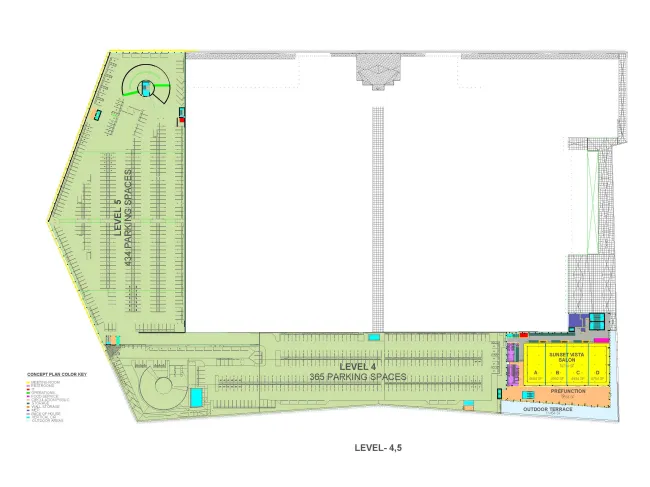
INTERACTIVE FLOORPLAN
This interactive floorplan is designed to empower event planners with robust tools and resources necessary for planning successful events at the Miami Beach Convention Center. It provides an in-depth exploration of our venue's layout, amenities, and event spaces.
Features and Information Available for Event Planners:
- Comprehensive Venue Layout
- Detailed Event Space Information
- Location Sharing URLs
- QR Code Generation
- Panoramic Views
- Wayfinding Assistance
*For scalable floor plans and exact diagrams, submit your RFP today and one of our experienced Sales Managers will be in touch to help.
Explore the Miami Beach Convention Center District Map
Attendees will enjoy the Miami Beach Convention Center District in close proximity to restaurants, shopping, culture and iconic beaches. Tap or click on the illustrations to learn more.

Miami Beach Golf Club
The Miami Beach Golf Club is one of the many attractions near the Miami Beach...

Collins Canal Park
Located on the north side of the Miami Beach Convention Center, Collins Canal Park is...

Holocaust Memorial
The Holocaust Memorial Miami Beach is located on the corner of Meridian Avenue and Dade...

Miami Beach Botanical Gardens
Pride Park is a stunning 5.8-acre park, located on the Miami Beach Convention Center Campus...

Rum Room & Venu
Located on the Miami Beach Convention Center campus, the new Rum Room restaurant and Venu...

Pride Park
Located across from the Miami Beach Convention Center, come visit Miami Beach’s new Pride Park.

Miami Beach Convention Center
As a prominent event venue for large-scale and global events, the Miami Beach Convention Center...

Miami City Ballet
When visiting the Miami Beach Convention Center make sure to enjoy one of the many...

Bass Museum Collins Park
When searching for attractions near the Miami Beach Convention Center, The Bass offers dynamic contemporary...

Headquarter Hotel
Coming soon to the Miami Beach Convention Center District, is the 800-room Grand Hyatt Miami...

The Fillmore
The Fillmore Miami Beach at the Jackie Gleason Theater, located next to the Miami Beach...

New World Theater Soundscape Park
When visiting Miami Beach be inspired by the finest contemporary and classical music and enjoy...

Lincoln Road Mall
The iconic Lincoln Road is a shopping, dining, and entertainment center with unique shops, designer...
Floor Plans & Campus Map
Explore and download detailed floorplans of our campus here to discover the layout and facilities available for your convenience.

Submit RFP
Plan your next meeting, conference, or special event at the state-of-the-art Miami Beach Convention Center. Rent one of our elegant, flexible spaces for meetings, conferences and receptions by submitting a Request for Proposal (RFP) today.